

Máme pro vás řešení
Rozšíření kapacity MŠ Nerudova Telč
Výstavba datového centra Vysočina firmy Optonet
Rekonstrukce vodovodu - III. etapa Bransouze
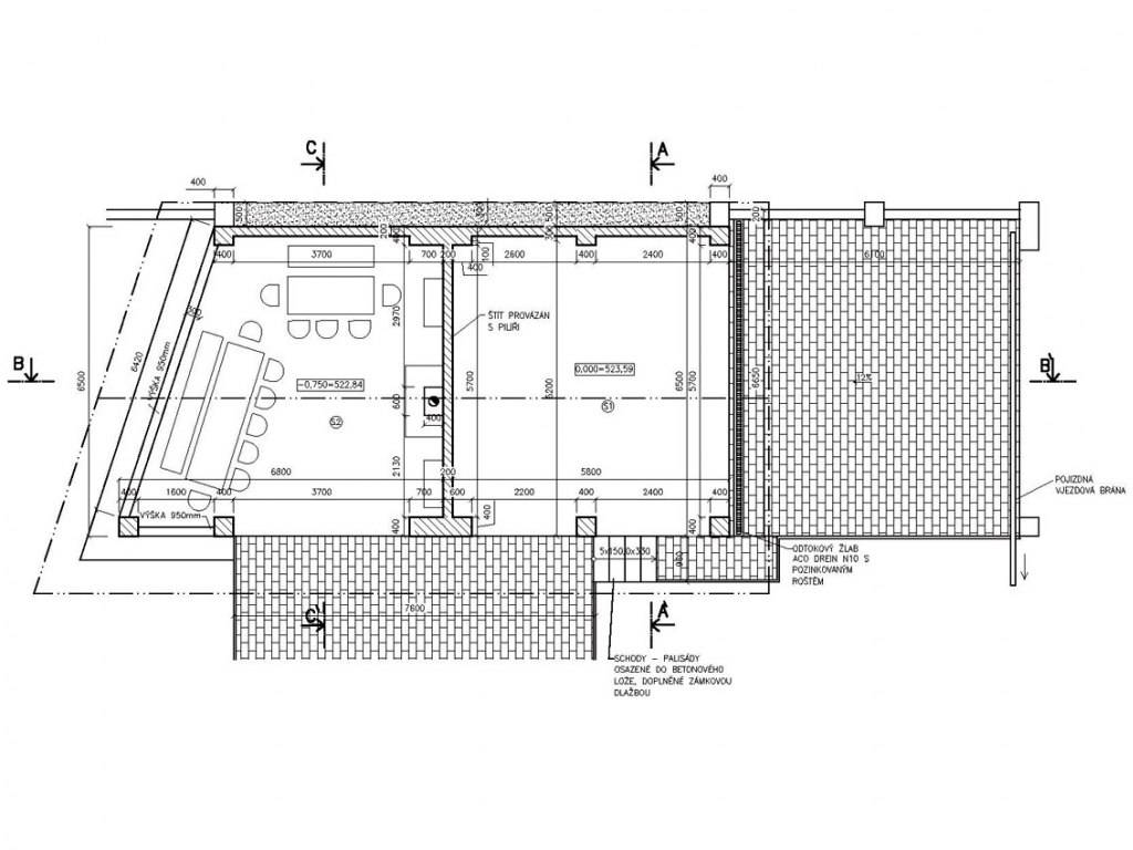
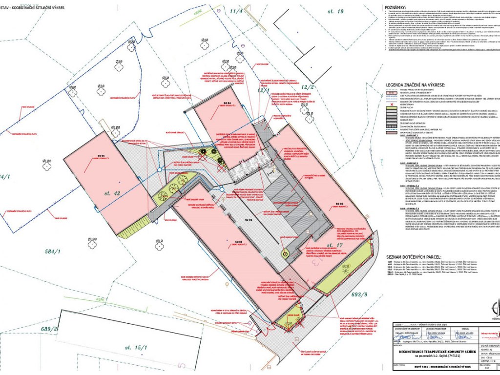
Rekonstrukce terapeutické komunity Sejřek
Úprava plynového hospodářství a objektu hasičů
Zkapacitnění retenční nádrže v průmyslové zóně Pávov
Výstavba výrobní haly Optokon Kable v Pelhřimově
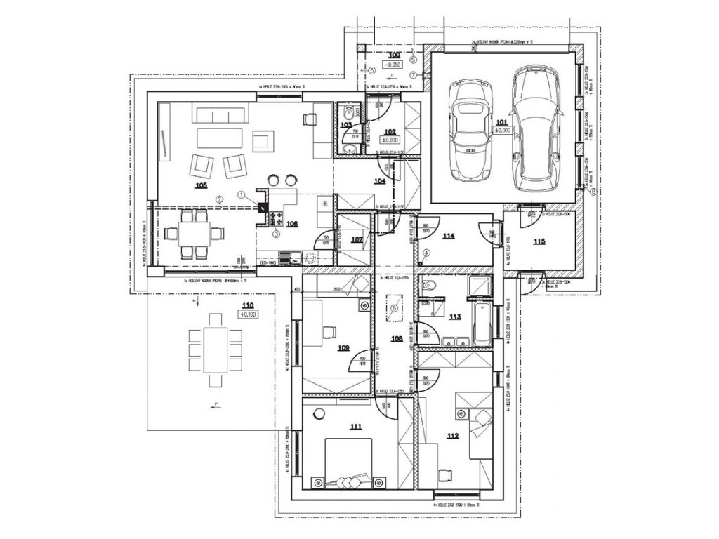
Výstavba rodinného domu v Jihlavě
Výstavba nové administrativní budovy firmy VHS Syner Jihlava
Studie rozšíření skladu za stávajícím skladem obalů a odpadů MH CZ
Stavební úpravy pro odhlučněné chodby u vstupu do R&D AL CZ
Přístřešek na vozidla v areálu Kosovská Jihlava
Přístavba parkoviště a odpočinkové plochy v areálu AL CZ
Přístavba kanceláří R&D v areálu Automotive Lighting
Přístavba haly a administrativy k logistickému centru GLS Jihlava
Protipovodňová opatření v areálu AL CZ
Odstavné stání pro kamiony a rozšíření parkoviště v areálu firmy Bosch
Novostavba rodinného domu ve Vílanci
Novostavba rodinného domu v KÚ Hojkov okr. Jihlava
Novostavba krytého otevřeného přístřešku k RD v Rantířově




